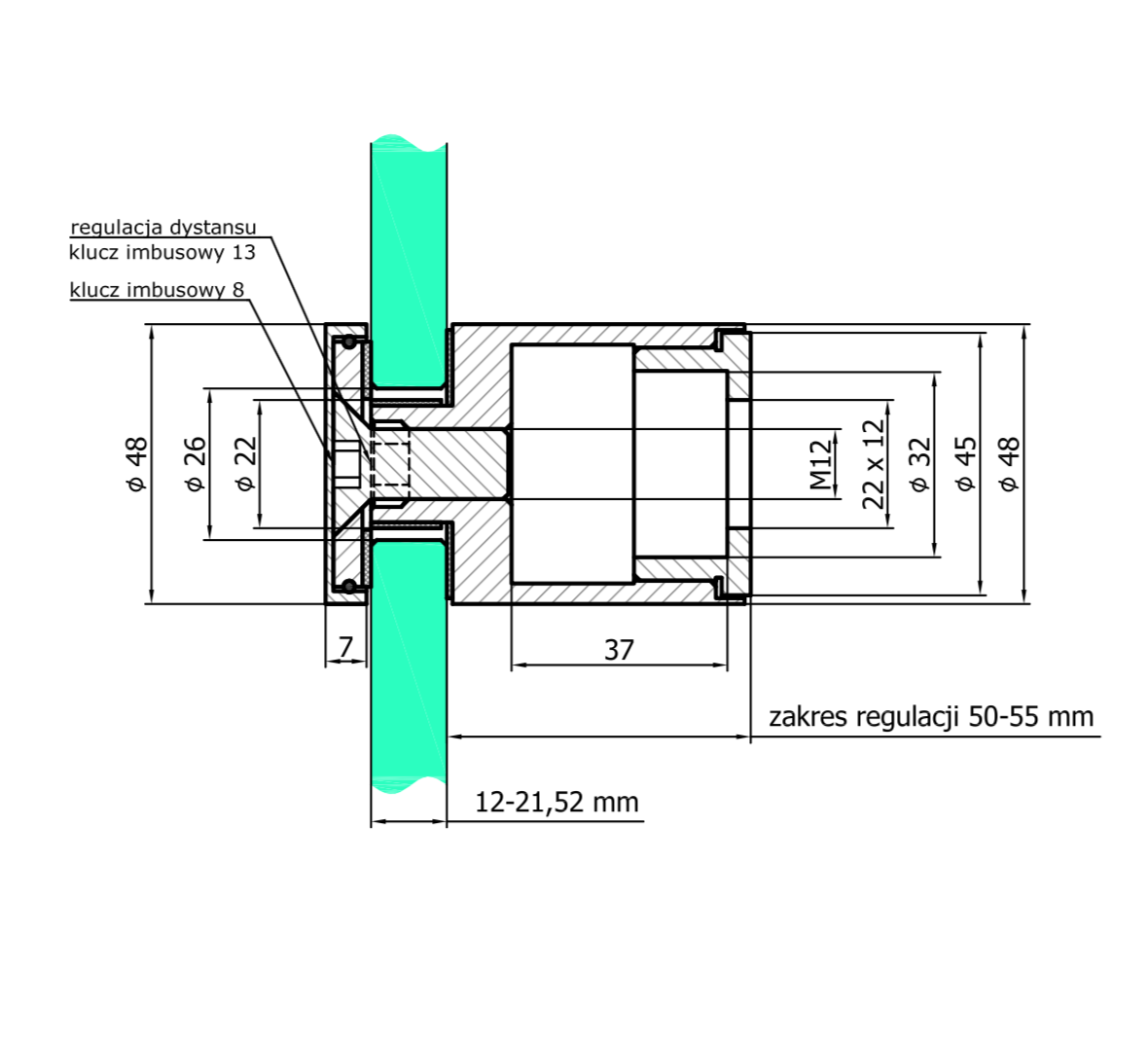
Mocowanie punktowe Cosmo Fi 48 dystans 50mm
Cena regularna:
Cena regularna:
towar niedostępny
dodaj do przechowalni
Opis
Średnica rotuli: 48mm, rotula na grubość szkła 10-21,52mm, materiał stal nierdzewna, dystans 50mm

